JPオフィス東京ノースイースト(仮称)

西新井駅建て替えで利便性向上。
人の流れが集まる動線上に佇む
デザイナーズビルが、
新たな街の象徴に。

人が集い、街が進化する場所

西新井駅周辺エリアに誕生するデザイナーズビル。
住宅と商業が調和した落ち着きある街並みに溶け込みながら、洗練されたデザインが存在感を放ちます。

オフィス・サロン・スクール等
おしゃれで快適な環境で
スタートできます!

駅への動線上に立地し、
人の流れが自然と集まるロケーション。
店舗・サービス業に適した好立地で、
上質な空間を活かした新たなビジネス展開が可能です。

生まれ変わる西新井

西新井駅ビル建て替え(2030年3月竣工予定)で、
新たな駅の顔が誕生します。
利便性・景観が向上するだけでなく、
新たな都市計画道路整備(令和20年予定)によって車アクセスも改善。
住宅・商業・業務の拠点としての発展が期待されるエリアです。
日常の暮らしに寄り添いながら、
観光や交流の拠点としても魅力を高める西新井駅周辺エリア。
地域密着と新たな都市の成長が融合するこの街で、
未来を見据えた価値ある一歩を踏み出しませんか。

交通アクセス

東武スカイツリーライン「西新井」駅より

東武スカイツリーライン 「北千住」駅へ4~10分
東京メトロ日比谷線 「上野」駅へ18~20分
東京メトロ半蔵門線 「錦糸町」駅へ19~26分
東京メトロ日比谷線 「秋葉原」駅へ24~26分
JR上野東京ライン「東京」駅へ26~35分 「押上」駅で都営浅草線エアポート快特に乗り換え
東京メトロ半蔵門線 「大手町」駅へ32~39分
東京メトロ日比谷線 「銀座」駅へ39~41分
JR中央線 「新宿」駅へ42~47分 「秋葉原」駅でJR中央・総武線、「御茶ノ水」駅でJR中央線に乗り換え
東京メトロ日比谷線 「霞ヶ関」駅へ43~45分
東京メトロ日比谷線 「六本木」駅へ47~50分 「押上」駅で京成成田スカイアクセス線に乗り換え
東京メトロ半蔵門線 「渋谷」駅へ50~56分
東京メトロ日比谷線 「中目黒」駅へ54~62分 「押上」駅で京成成田スカイアクセス線に乗り換え
京急空港線 「羽田空港」駅へ67~77分 「押上」駅で都営浅草線エアポート快特に乗り換え
京成成田スカイアクセス線 「成田空港」駅へ77~85分 「押上」駅で京成成田スカイアクセス線に乗り換え

※徒歩分数は地図上の80mを1分とした現地からの徒歩概算分数です。
※所要時間は「駅すぱあと 2024/05 第1版 平日ダイヤ」より乗り換え時間含む。

優美な印象を演出した

エントランスホール

アートの香り高い気品さを演出し、貴賓ある端正な空間を造形。
高い美意識を感じさせる迎賓空間です。

創造性・人材重視
クリエイティブオフィス

1日の大半を過ごすオフィス。
狭いスペースでも、
みんなが働きやすい導線も考えつくされた快適空間が、ビジネスシーンを創出する。

Kitchen

シングルレバー混合水栓

吊戸棚

シンク

電気温水器

Toilet

ウォシュレット

トイレリモコン

吊戸棚

ペーパーホルダー

タオル掛け

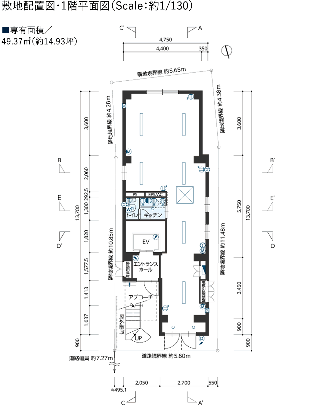
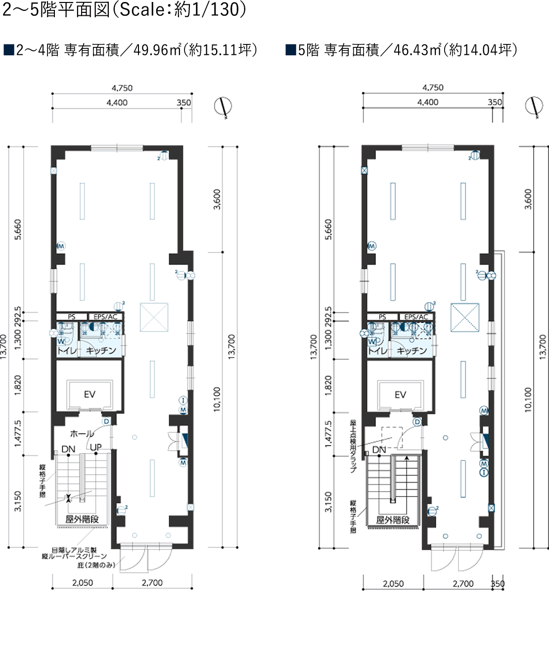
設備凡例

図面についての共通事項

●行政官庁の指導、施工上の都合および改良などの為、やむを得ず建物・外構の設計、仕様、寸法、コンセント、照明器具など設備の取付位置、形状などについては変更が生じる場合があります。予めご了承ください。(変更が生じた場合には竣工図面にて表示いたします) ●各図面での寸法単位は特記のない限り㎜で表示いたします。(施工上誤差が生じる場合がありますので予めご了承ください) ●方位記号は若干誤差が生じる場合がありますので、正確な方位については設計図書でご確認ください。 ●専有面積は建築基準法に基づく壁芯計算によります。従って登記上の内法計算による面積は若干減少します。 ●専有面積の中には室内パイプスペース(PS)、メーターボックス(MB)の面積が含まれております。 ●室内の段差表示は省略しています。 ●垂直避難口の位置につきましては設計図書をご確認ください。消防設備の保守・点検の為、係員が各室に立ち入る場合があります。 ●坪数換算はm2に0.3025を乗じた数値で表示しています。壁厚を含む面積となっていますのでご注意ください。(小数点第3位以下は切り捨て) ●平面図の設備記号は凡例をご参照ください。 ●室内部の壁・天井には設備用の点検口が設けられている箇所があります。(階数によって設置位置などは異なります)点検口などは省略しています。 ●コンセントなどの設備位置につきましては、施工上の都合などにより若干ずれる場合があります。 ●間取り図は基準階のものであり、階数により柱および梁の大きさは異なります。 ●縮尺率は印刷の都合上多少の差異が生じることがあります。