


レンタルショップオフィス
好立地、洗練されたワークスペース、最新設備、働くあなたの時間を効率よくサポートします。
ビジネスの拠点として、または新しいアイデアが生まれる場として、快適な環境をご提供致します。
高槻市駅前で、あなたのビジネスをひとつ上のステージへ!

レンタルショップオフィスとは、皆様の様々なビジネス用途に合わせた使い方ができるフレキシブルなワークスペースです。
気軽に利用できるため、初めての起業からサイドビジネス、短期プロジェクトなど多様なニーズに対応。必要なときに必要なだけ使えるため、コストも効率的。高槻市駅前・徒歩1分の便利な立地で、あなたのビジネスをスタート!


※徒歩分数は地図上の80mを1分とした現地からの徒歩概算分数です。
※電車所要時間は平日・通勤時(7時台~9時台)の所要時間です。(ジョルダン調べ)
高槻市は大阪市と京都市の中間に位置し、
JRや阪急電車の利用が便利です。
これにより通勤や通学がしやすくなっています。

大阪駅へ15分
大阪梅田駅へ26分

新大阪駅へ11分

京都駅へ12分
京都河原町駅へ24分

三ノ宮駅へ42分
神戸三宮駅へ53分

ショッピングからエンターテイメントまで揃う中心エリア。
2線を使い分けできる便利なロケーションで大阪・京都・
神戸などの都心へ
2WAYアクセスが可能です。
2018年、新名神高速道路、高槻~神戸間が全線開通しました。近くには新名神高速道路の高槻ジャンクション、インターチェンジがあります。
城陽~大津間、高槻~八幡京田辺間のルートも開通が予定されています。今後の道路網の充実により、中京圏へのお車での移動がより一層便利になります。

※電車所要時間は平日・通勤時(7時台~9時台)の所要時間です。(ジョルダン調べ)
高槻市は自然が豊かで公園や
緑地が多く魅力的な環境です。
都市開発(市内の再開発や住宅地の開発)と
インフラ設備が進んでおり、
人にやさしい環境が整っています。


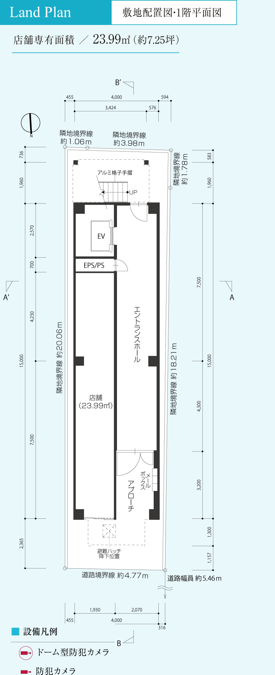
●行政官庁の指導、施工上の都合および改良などの為、やむを得ず建物・外構の設計、仕様、寸法、コンセント、照明器具など設備の取付位置、形状などについては変更が生じる場合があります。予めご了承ください。(変更が生じた場合には竣工図面にて表示いたします) ●各図面での寸法単位は特記のない限り㎜で表示いたします。(施工上誤差が生じる場合がありますので予めご了承ください) ●方位記号は若干誤差が生じる場合がありますので、正確な方位については設計図書でご確認ください。 ●専有面積は建築基準法に基づく壁芯計算によります。従って登記上の内法計算による面積は若干減少します。 ●専有面積の中には室内パイプスペース(PS)の面積が含まれております。 ●室内の段差表示は省略しています。 ●垂直避難口の位置につきましては設計図書をご確認ください。消防設備の保守・点検の為、係員が各室に立ち入る場合があります。 ●帖数については壁芯計算で1帖=1.62m2で算出しています。(小数点第2位以下は切り捨て) ●坪数換算はm2に0.3025を乗じた数値で表示しています。壁厚を含む面積となっていますのでご注意ください。(小数点第3位以下は切り捨て) ●平面図の設備記号は凡例をご参照ください。 ●室内部の壁・天井には設備用の点検口が設けられている箇所があります。(階数によって設置位置などは異なります)点検口などは省略しています。 ●コンセントなどの設備位置につきましては、施工上の都合などにより若干ずれる場合があります。 ●間取り図は基準階のものであり、階数により柱および梁の大きさは異なります。 ●縮尺率は印刷の都合上多少の差異が生じることがあります。 ●その他、各図面の寸法など詳細は設計図書にてご確認ください。 ※ご購入までに詳細は設計図書にてご確認ください。 ※敷地周辺の建物等、周辺環境につきましては、ご購入までに現地で十分ご確認ください。






〒530-0001
大阪府大阪市北区梅田1丁目11番4号
大阪駅前第4ビル20F

JP株式会社では、一般には出回らない希少な不動産売買情報を豊富に取り扱っております。
独自のネットワークを活用し、お客様のニーズに合った最適な物件をご提案します。
さらに、土地や建物の売却をご検討中の方も、ぜひご相談ください。
経験豊富なスタッフが、スムーズかつ安心な取引をサポートいたします。
不動産に関するご質問やご相談がありましたら、お気軽にお問い合わせください。